窓・ドア特集
LIXILロンカラーフラッシュドアは実用性を重視した勝手口ドア。 目隠し付きポストやアイスコープなどのバリエーションが豊富です。
LIXIL ロンカラーフラッシュドアの特長
汎用性に富んだ
リーズナブルなドア!
表面は耐食性に優れたガルバリウム鋼板、内部はペーパーハニカム構造。
物置やミニハウスに最適です。
多彩なバリエーション!
■本体の表面材は木目、新アイボリー、ブラック、オータムブラウン、
シャイングレーの5色を用意しております。
本体表面色
-
新アイボリー
-
シャイングレー
-
木目
-
オータムブラウン
-
ブラック
■デザインはポストの挿入口から室内側が見えない目隠しポスト付、
来客の確認ができるアイスコープ付、
防虫網内蔵のガラリ付など多彩に用意しています。
本体デザイン
-
フラット
-
ガラリ付
-
立額付
-
ポスト・アイ付
ポストぐち
防虫網内蔵のガラリは、室内側のツマミで自由に開閉できます。
■錠は握り玉仕様とレバーハンドル仕様を採用。
室内側からの鍵のかかりが見えない防犯プレート付です。
-
握り玉仕様
-
レバーハンドル仕様
枠カラー
-
ホワイト
-
オータムブラウン
-
ブラック
-
ブロンズ
-
シャイングレー
■枠は半外付型枠となっており、ドア枠取付後に外壁を貼る場合にお勧めです。
またアングル付枠に加え、アングル無粋をご用意しております。
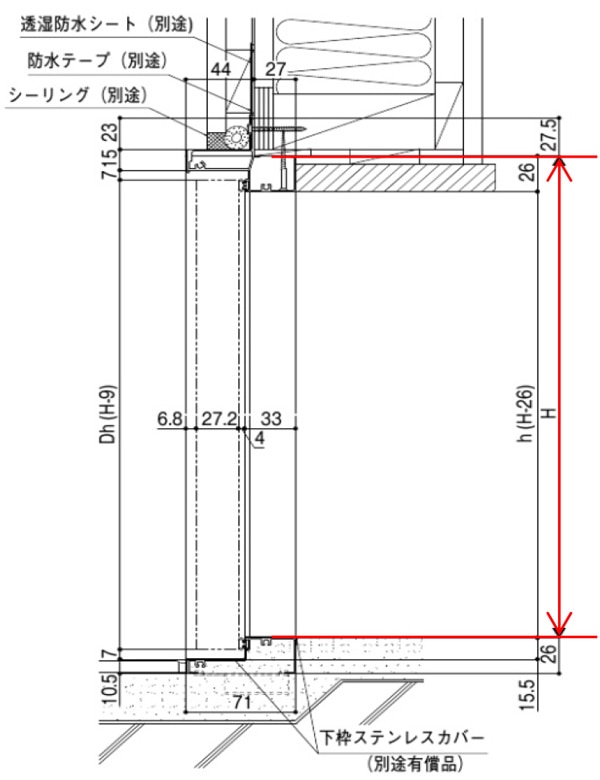
■取付箇所の寸法確認
半外付枠 アングル無
-
(縦断面図)
-
(横断面図)
仕様
使用対象
・1階土間納まり(この他に使用する場合は防水処理を行ってください。)
・木造戸建住宅(集合住宅のエントランスや店舗用としてはご使用いただけません。
材質
枠:アルミ形材
本体:ガルバリウム鋼板(内部はペーパーハニカム構造)
基本性能
耐風圧性能:S-2(120)等級 ※( )内は旧等級
水密性能:水密性能はありません。
装備・付属品
錠・把手(握り玉またはレバーハンドル)、丁番(ステンレス製2枚吊)、下枠用アンカー(半外付枠のみ)、3~4mm用片ビード(立額付本体のみ)
施工上のご注意
※天候・立地によっては、商品に風雨が当たると枠と本体のすきまや、ガラリ・立額・ポストのまわりから室内側に水が入ってくるおそれがあります。また、ドア 本体内に水が侵入すると、外観・性能に支障をきたすおそれがありますので直接水がかかる場所でのご使用はお避けください。
●使用可能ガラス厚は3~6.8mmです。
●ドア本体はRL兼用で、出荷状態は右吊元(R)となっております。左吊元(L)に変更する場合は、ドア本体の表裏面を反転し、ロック、ガードプレート、ポスト、ガラリ、額縁などを付替えしてください。
汎用ドア ロンカラーフラッシュドアの販売はこちらから
※商品は店頭引渡しのみとなります。(一部店舗限定となります)
対象店舗は商品ページをご確認ください。
LIXIL ロンカラーフラッシュドア
半外付型ランマ無 寸法表
※該当寸法の数字をクリックすると商品ページに移動します。

